- For Sale by Live Stream Auction 25th June 2025
- Four bed detached Victorian Home
- Set in stunning 1 acre grounds in the heart of desirable village
- 2,499 sq ft of accommodation
- In need of modernisation
- Buyers Fee £900 + VAT
For Sale by Live Stream Auction 25th June 2025 - Four bed detached Victorian Home - Set in stunning 1 acre grounds in the heart of desirable village - 2,499 sq ft of accommodation - In need of modernisation - Buyers Fee £900 + VAT
About this property
Detailed Description
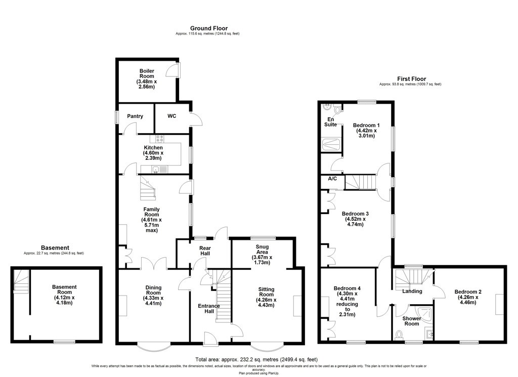
Built in 1853, this fine Victorian home is ready for a new custodian to breath life into its walls. Nestling in a stunning 1 acre plot in the heart of the desirable village of Navenby the expansive accommodation extends to around 2,499 sq ft and offers three reception rooms, kitchen, pantry and basement to the ground floor with four bedrooms and two bathrooms to the first floor. The beautiful garden has been established over many years with mature trees and planting, lawned gardens, large patio, pond, gravel driveway and oak framed car port.
Location
From Lincoln follow the A607 towards Navenby. As you reach the village turn right onto North Lane and the property is on your right.
https://what3words.com/pleaser.ants.shadow
Accommodation
Entrance Hall
With stairs to first floor, door to basement, radiator, door to;
Reception One
Single glazed bay window to front elevation with secondary glazing and single glazed casement window to side elevation with secondary glazing, two radiators, open fireplace.
Reception Two
Single glazed bay window to front elevation with secondary glazing, fireplace (not currently in use), radiator, doors to;
Reception Three
Single glazed casement window to side elevation with secondary glazing, built-in storage, stairs to first floor, door to side elevation and door to;
Kitchen
Single glazed casement window to side elevation with secondary glazing, fitted wall and base units with double stainless steel drainer sink, free-standing oven with extractor over, part tiled walls, radiator, space and plumbing for washing machine, door to;
Pantry
With built-in shelving and storage.
Rear Hall
Single glazed casement window to rear elevation with secondary glazing, single radiator, door to rear elevation.
Basement
Single glazed casement window to front elevation.
First Floor
Bedroom One
Single glazed casement window to front elevation with secondary glazing, pedestal wash basin, fireplace (not currently in use), radiator.
Shower Room
Single glazed casement window to front elevation with secondary glazing, three-piece suite comprising shower cubicle, wash basin in vanity unit, low flush WC, part tiled walls, extractor, radiator.
Bedroom Two
Single glazed basement window to front elevation with secondary glazing, cast-iron open fireplace with tiled surround, built-in storage, radiator.
Bedroom Three
Single glazed casement window to side elevation with secondary glazing, built-in wardrobes, radiator, sliding door to airing cupboard with hot water tank.
Bedroom Four
Single glazed casement windows to rear and side elevation, radiator, walk in wardrobe, door to;
En-Suite Shower Room
Three-piece suite comprising large shower cubicle, wash basin in vanity unit, low flush WC, hot tub walls, heated towel rail, extractor.
Real Landing
Single glazed casement window to side elevation with secondary glazing, stairs leading down to the dining room, loft access.
Services
We understand the property offers mains water, mains electric, oil fired central heating and main sewer connections.
Outside
The property sits in a stunning plot of around an acre with mature trees, lawned Gardens, patio area with pond, gravel driveway with oak framed carport. The front elevation offers a stone walled patio area with pedestrian gate.
Outside WC
With Belfast sink and a mid flush WC and single glazed casement window to rear elevation.
Boiler Room
A useful outside storage space housing Potterton oil fired boiler.
Outbuilding
A brick and pantile outbuilding which is divided into three sections and comprises two storerooms and a coal shed.
Viewing
Strictly by appointment with the Auctioneers on 01522 504360
Other
REGISTER TO BID
To register to bid please copy and paste this link into your browser or if on rightmove please visit our auction website:
https://passport.eigroup.co.uk/bidder-registration/the-county-property-auction/134490
LEGAL PACK
To register to bid please copy and paste this link into your browser or if on rightmove please visit our county property auction website:
https://legaldocuments.eigroup.co.uk/default.aspx?auctioneercode=jhw&lotnumber=12&auctiondate=20250625
Auction Bidder Identity Check
Prior to bidding on any auction lots we are required to verify the identity of the bidder to comply with The Money Laundering, Terrorist Financing and Transfer of Funds (Information on the Payer) Regulation 2017. We also need to complete the remote bidding registration process as this will be a live stream event only. Please contact us on 01522 504360 or cpa@brown-co.com
Completion date
10% deposit and up to 8 weeks for completion.
Solicitors
Matthew Richardson
Knights,
Embankment House,
Electric Avenue,
Nottingham,
NG2 1AS
0115 6713912
matthew.richardson@knightsplc.com
Agent
James Mulhall 01522 504360 cpa@brown-co.com
To arrange a viewing contact
Register with us and we will email you properties matching your search requirements.
Brown&Co