- Grade II listed Country Hall.
- Resilient arable land and woodland.
- Traditional & modern farm buildings.
- In all approximately 224.09 hectares (553.74 acres).
Quality fully equipped residential farm of approximately 224.09 hectares (553.74 acres).
For sale by private treaty as a whole or in lots.
About this property
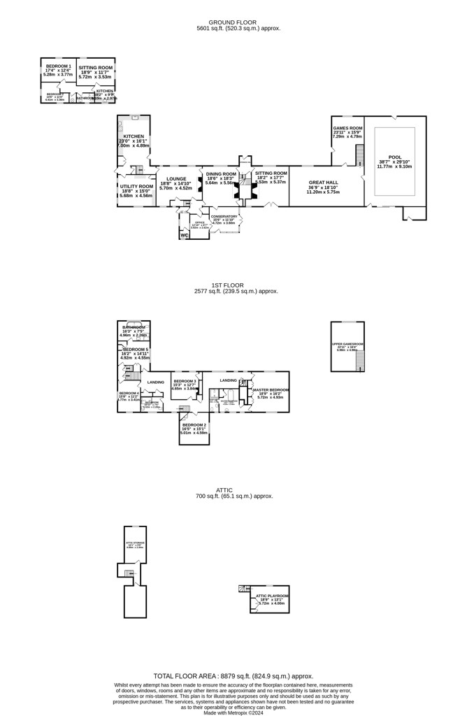
Detailed Description
INTRODUCTION
Steeped in history, it is believed that Whittingham Hall was originally the principal outbuilding to the former moated Manor House to the north of the present residence. Reputedly frequented by Prince Edward 1st the land at one point encompassed a royal deer park before passing to the Banbury Family in the middle of the 16th Century.
With its combination of Hall, productive arable land, traditional and modern farm buildings and shooting potential, Whittingham Hall provides prospective purchasers with the rare opportunity to acquire a well equipped commercial farm with a Country Hall in a highly sought after part of Suffolk.
WHITTINGHAM HALL
Whittingham Hall enjoys a central position within the holding adjacent to the farmyard. The Hall is Grade II listed dating back to 1653, constructed of red brick laid in English Bond over two storeys with attic space. Whilst the Hall has been extensively improved during the current period of ownership, the Hall has retained its character with period features throughout including casement windows with square leaded panes, moulded frames and the central gable porch amongst others. The Hall is approached from the south via a gated driveway lined by mature chestnut, oak and lime trees with a large circular pond to the front.
EPC Rating Whittingham Hall - G
THE COTTAGE
Just to the north of the Hall is the Cottage which has been run as a successful holiday let. The Cottage accommodation comprises;
Kitchen (south & west) 3.10 x 2.97m (10'2" x 9'9") Shaker style fitted kitchen with base and wall units, butcher
block effect worktop and tiled splashbacks, tiled floor, integrated dishwasher, Bosch oven and electric hob, Hotpoint extractor hood, single sink and drainer with mixer taps. Door to hallway and
Sitting Room (south & east) 5.72m x 3.53m (18'9" x 11'7"). Wood effect flooring and timber beam.
Bathroom (west) white suite including low rise WC, hand basin with tiled splashback and shower unit.
Bedroom 1 (north & east) 5.28m x 3.77m (17'4 x 12'4").
Bedroom 2 (north & west) 4.41m x 3.36m (14'4" x 11'0").
EPC Rating The Cottage - E
GROUNDS
The gardens are a particular feature. They are south west facing and primarily laid to lawn, bordered by wide beds which host an array of shrubs and colourful planting.
The garden offers extensive entertaining space with two patio areas from which to enjoy the evening sun. For keen gardeners there is also a south facing greenhouse with brick floor. From the garden there is access via a foot gate to walk the arable land beyond.
From the Great Hall the fully enclosed propane heated swimming pool measuring 9m x 4.5m, max depth 2.4m and can be accessed. From double sliding patio doors the south west facing terrace and gardens beyond can also be enjoyed.
The Cottage also enjoys its own private patio adjacent.
There is red brick and clay tile outbuilding to the northeast of the Hall with three garages and additional storage space.
THE FARMYARD
The farmyard comprises a mix of traditional and modern fam buildings which have been used by the in-hand farming enterprise.
LAND
The gently undulating farmland has been extensively under drained with plans available upon request. The land is primarily classified as Grade 3 situated in a single block albeit divided into four by a network of roads which provide easy access to most parcels and good road frontage.
The arable land has been farmed in-hand with a rotation of winter wheat, oilseed rape and winter beans producing good yields. The full cropping history for the last 5 years is available from the selling agents.
The land is defined by the Soil Survey of England & Wales as being predominantly of the Beccles Association Ragdale Series and described as a fine loam over clay soil providing resilience in dry years.
Adding to the amenity and sporting opportunity of the holding there are blocks of mixed woodland and copse across the land extending to approximately 6.77 hectares (16.75 acres) in total.
GENERAL REMARKS & STIPUATIONS
METHOD OF SALE
The property is offered for sale by Private Treaty as a whole. If a purchaser is interested in any part of the property they are invited to discuss their requirements with the selling agents.
TENURE & POSSESSION
The property is offered for sale freehold.
Other than as detailed under the holdover provisions, the property is offered for sale with vacant possession on completion.
HOLDOVER
The Vendors reserve a right of holdover:
- On the grain store building (Building 1) to store crops up to the end of 30th March 2025, if required.
- On the yard and parcel 9753 for a period of 8 weeks from completion of the sale for the purpose of farm machinery sale.
- In relation to the sporting syndicate to the 31st January 2025.
VIEWING
Strictly by appointment with Brown & Co. Please contact Edward Plumb or Sarah Lucas.
To arrange a viewing contact
Register with us and we will email you properties matching your search requirements.
Brown&Co