Skip to content
Search
Book valuation
1 / 13
LOT 1, Whitacre Hall Grounds And Buildings, Nether Whitacre, Coleshill, Warwickshire, B46 2PD
1 / 1
Guide Price
£3,000,000
  • The Hall is situated within a Medieval Moat
  • Extensive range of traditional brick and tiled buildings and tea room
  • Range of modern agricultural buildings
  • What3words Location: impaled.races.darts

LOT 1

Whitacre Hall, Grounds & Buildings

The Whitacre Hall residence is situated within the Medieval moat which is a testament to the property's long and fascinating history and its link to Tamworth Castle.

Arrange viewing

About this property

Detailed Description

This captivating small country estate has a rich heritage offering a perfect blend of tranquillity and easy access to local amenities, with Birmingham city centre being approximately 11.5 miles away as the crow flies. Nether Whitacre is also ideally located for access to the motorway network at nearby Coleshill which has the intersection of the M6 & M42.
A mainline railway station can found at Birmingham International (NEC) with the adjoining Birmingham International Airport.

The sale of Whitacre Hall presents an exciting opportunity for those seeking a prestigious historical property with exceptional potential, whether you envisage a grand family home, a luxurious retreat, or an exclusive development (subject to planning permission), this versatile estate offers a wealth of possibilities.

The centre piece of the estate is the impressive Whitacre Hall, which is in need of renovation and modernisation. It is a substantial Hall dating largely from the Seventeenth and Eighteenth Century. There is a rear wing, which is likely to be of Seventeenth Century origin. The property is Grade II listed and is surrounded by a picturesque moat, enhancing its secluded and private nature, offering a rare find of being a tranquil and serene location.

It is complimented by an extensive range of traditional brick and tiled buildings, some of which have been used for equestrian purposes. There are a range of modern buildings, which are let on a commercial basis and an extensive range of modern portal framed buildings, which are currently used for livestock and arable farming purposes.
In the last few years, the vendors have diversified their farming business with the Tea-Room business and access to the farm via country walks.

The Hall itself is a truly exceptional example of a Grade II listed property, steeped in history and set within a breathtaking moat. This rare and remarkable property offers a unique piece of English heritage and charm.



The History of Whitacre Hall:
Evidence has been found of a ceremonial mace head, which was ploughed up at the farm in 1988 and may have been linked to a Stone Age Settlement believed to be located in the nearby village of Hurley.

After the Norman Conquest, the manor of Nether Whitacre was held by the Marmions of Tamworth. After a succession of generations, Whitacre Hall came into the ownership of Henry Cheyney who latterly conveyed it to Lawrence Washington of Sulgrave, Northamptonshire, who was an ancestor of George Washington, the first President of the United States of America.

The Washington family sold the estate to George Villiers who became the High Sheriff of Leicestershire in 1591.George Villiers was the father of another George who was a favourite of King James I and he was given the title of the Duke of Buckingham. George sold Whitacre Hall to the Brabazon family who conveyed the property to Sir Robert King of Boyle Abbey in Roscommon, Ireland in 1631.

Sir Robert's son John resided at the Hall and was a Roundhead during the Civil War, with records showing that the property was used as a garrison at this time.

In 1681, the descendants of the King family conveyed the Hall to Humphrey Jennens of Erdington Hall. Humphrey Jennens was a wealthy Birmingham iron founder, and it was Humphrey's grandson, Charles, who was a patron of the arts and was a friend of George Frideric Handel of Handel's '' Messiah'' fame. It believed that Charles selected elements of ''Messiah'' during the time that he lived at Whitacre Hall and nearby Gopsall Hall.

Over the coming years, the estate changed hands a number of times and in 1887 became the ownership of the Holder family brewing business, which then became part of the Mitchell and Butlers brewing empire.

The estate was eventually purchased by Arthur Lloyd, who was a tenant at the property when the Hall was under the ownership of the Holder family, and it was from the Lloyd family that the present owners being the Pickworth family, purchased the property in 1959.


Overall:
The sale of Whitacre Hall presents a rare opportunity to purchase a piece of English heritage.
This historic small estate boasts the historic Hall which needs some renovation and modernisation. There is an extensive range of modern and traditional buildings which offer a wealth of potential. There is also a tearoom at the property. With its wealth of historic features, the sale of Whitacre Hall gives the opportunity to acquire a significant piece of England's heritage, with its historic features, moated setting and extensive grounds and farmland. Whitacre Hall offers an unparalleled opportunity to create one of Warwickshire's most desirable residences.



Accommodation:

The accommodation at Whitacre Hall can be summarised as follows:

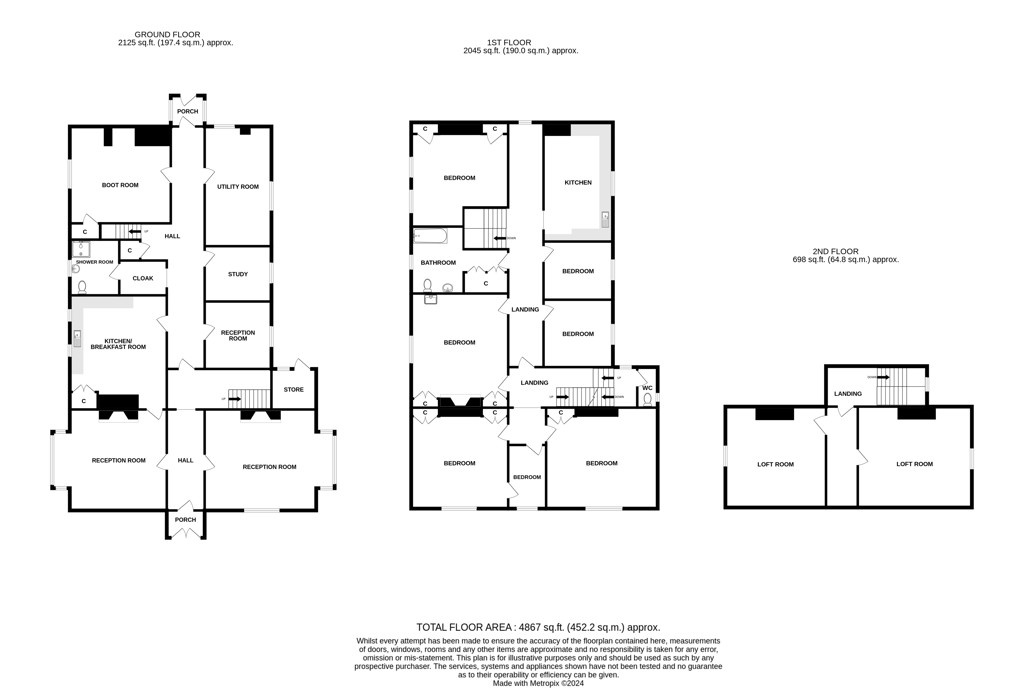
Ground Floor:

Front Porch: - with quarry tiled floor, door leading to inner hallway with quarry tiled floor with six doors leading to the ground floor accommodation.

Boot Room/Utility Room: - 4.85m x 4.66m (max) with historic features including an alcove fireplace and bread oven. Beamed ceiling and quarry tiled floor, plumbing for washing machine, central heating boiler and access to water softener system.


Kitchen:/Breakfast Room: - 4.89m x 4.83m with fitted floor to wall units, gas hob (from a bottled gas source), with 'terrazzo' tiled floor, muti fuel burner with cupboard off and a beamed ceiling.



Reception Room: - 4.86m x 4.66m (excluding bay window) with feature brick fireplace and bay window.


Dining Room: - 5.36m (excluding bay window) x 4.87m (max) with Victorian style cast iron fireplace with marble mantle and picture rail to wall.


Study/Reception Room: - 3.33m x 3.24m with beamed ceiling and a hatch leading to understairs cupboard and access to semi-cellar.

Office One/Study: 3.29m x 2.67m with beamed ceiling and raised concrete floor.


Office Two: 5.37m x 3.23m


First Floor:

Staircase leading to first floor landing with the servant bells being a distinctive feature.

First Floor Lounge: - 5m (max) 4.09m (min) x 4.96m (max) with Victorian style cast iron fireplace and oak panelled cupboards to side.


First Floor Kitchen: - 5.16m x 3.54m with fitted floor and wall units, five ring gas hob and twin ovens with stainless steel sink and mixer tap and drainer.


Bedroom One: - 3.51m x 2.75m

Bedroom Two: - 3.36m x 3.26m

Bathroom: - 4.94m (max) 2.35m (min) x 2.74m (max) 1.11m (min) with large airing cupboard

Bedroom Three (Master Bedroom): - with Victorian style cast iron fireplace, storage cupboard to each side and pedestal wash basin.

Bedroom Four: - - 4.67m x 4.44m with two storage cupboards off


Bedroom Five: - (Storage Room): - 3.07m x 1.8m



Bedroom Six: - 5.36m (max) x 4.9m (max) 4.41m (min) with storage cupboard off




Split level landing leading to separate W.C and staircase to second floor


Second Floor

Room One: - 5.51m x 4.82m (restricted headroom) and beamed ceiling

Room Two: - 5.04m x 4.82m (restricted headroom) with Victorian cast iron fireplace




Outside:

There is access from the garden to an old W.C/Store.



Farm Buildings (verged red):


The Boffey: A small stone built boffey located within the moated grounds of the Hall.

Building One: A range of stone and brick buildings consisting of six stables with a tiled roof

Building Two: A range of loose boxes and stables and Tack Room with brick floor

Building Three: Brick and stone with tiled floor, garage and Tack Room which contained a cast iron fireplace.

Building Four: Two Stables, storage and Carport

Building Five:'' The Threshing Barn'' a substantial brick and tiled building, presently used as a Workshop and for storage.

Building Six: A six-bay grain store with concrete panel and brick sides and box profile sheeting with access via a two-roller shutter door- 90ft x 80ft

Building Seven: Eight bays ''Atcost'' buildings with eight bay lean-tos with part concrete block and York boarding sides: 120ft x 75ft.

Building Eight:Former open silage clamp

Building Nine:Eight bay portal framed livestock building with concrete block and York boarding side - 120ft x 35ft.



Commercial Buildings - (verged blue)


Building A: Portal framed and concrete blocks. Approx 80ft x 50ft

Building B: Five Bay portal framed covered yard with concrete floor - Approx 80ft x 25ft.

Building C: Portal framed building with brick sides with sheeted roof. Approx 80ft 30ft
Building D: Six Bay portal framed yard-90ft x 30ft

Building/Area E: Area of open container storage


.

Tea Room

A brick and timber constructed building with a sheeted roof which comprises of:

Shop/Retail Area: - 4.45m x 4.36m

Kitchen: - 4.37m x 2.82m

Dining Area One: - 9.85m x 5.5m

Dining Area Two: - 9.0m x 4.8m with log burner


To the side of the Tea Room is an extensive timber decking area with views over the adjoining lake.



The Land:

Is classified as both Grade 2 and 3 on the MAFF produced land classification plans.
On the Soilscape Scale, the soil is predominantly classified as ''slightly acid loamy and clayey soil with inputted drainage and some loamy and clayey flood plain soils with a naturally high ground water.

The land has been farmed for a number of years on a predominantly arable rotation, with areas of permanent pasture used for grazing.




Location

Nether Whitacre is also ideally located for access to the motorway network at nearby Coleshill which has the intersection of the M6 & M42.
A mainline railway station can found at Birmingham International (NEC) with the adjoining Birmingham International Airport.

Accommodation

The accommodation at Whitacre Hall can be summarised as follows:

Ground Floor:

Front Porch: - with quarry tiled floor, door leading to inner hallway with quarry tiled floor with six doors leading to the ground floor accommodation.

Boot Room/Utility Room: - 4.85m x 4.66m (max) with historic features including an alcove fireplace and bread oven. Beamed ceiling and quarry tiled floor, plumbing for washing machine, central heating boiler and access to water softener system.


Kitchen:/Breakfast Room: - 4.89m x 4.83m with fitted floor to wall units, gas hob (from a bottled gas source), with 'terrazzo' tiled floor, muti fuel burner with cupboard off and a beamed ceiling.



Reception Room: - 4.86m x 4.66m (excluding bay window) with feature brick fireplace and bay window.


Dining Room: - 5.36m (excluding bay window) x 4.87m (max) with Victorian style cast iron fireplace with marble mantle and picture rail to wall.


Study/Reception Room: - 3.33m x 3.24m with beamed ceiling and a hatch leading to understairs cupboard and access to semi-cellar.

Office One/Study: 3.29m x 2.67m with beamed ceiling and raised concrete floor.


Office Two: 5.37m x 3.23m


First Floor:

Staircase leading to first floor landing with the servant bells being a distinctive feature.

First Floor Lounge: - 5m (max) 4.09m (min) x 4.96m (max) with Victorian style cast iron fireplace and oak panelled cupboards to side.


First Floor Kitchen: - 5.16m x 3.54m with fitted floor and wall units, five ring gas hob and twin ovens with stainless steel sink and mixer tap and drainer.


Bedroom One: - 3.51m x 2.75m

Bedroom Two: - 3.36m x 3.26m

Bathroom: - 4.94m (max) 2.35m (min) x 2.74m (max) 1.11m (min) with large airing cupboard

Bedroom Three (Master Bedroom): - with Victorian style cast iron fireplace, storage cupboard to each side and pedestal wash basin.

Bedroom Four: - - 4.67m x 4.44m with two storage cupboards off


Bedroom Five: - (Storage Room): - 3.07m x 1.8m



Bedroom Six: - 5.36m (max) x 4.9m (max) 4.41m (min) with storage cupboard off


Split level landing leading to separate W.C and staircase to second floor



Second Floor

Room One: - 5.51m x 4.82m (restricted headroom) and beamed ceiling

Room Two: - 5.04m x 4.82m (restricted headroom) with Victorian cast iron fireplace


Outside:

There is access from the garden to an old W.C/Store.



Remarks and Stipulations:


Directions:
From Coleshill - proceed out of Coleshill along the Blythe Road, via the village of Shustoke to the village of Furnace End. At the crossroads, turn left (B4098) towards Nether Whitacre. In Nether Whitacre, take the right turn into Dog Lane and Whitacre Hall is located on the left-hand side after approximately 1.5 miles.

What3words Location: impaled.races.darts


Tenure and Possession:
Lot 1: -Is being sold freehold and predominantly with vacant possession of the commercial units. The details of the occupier and terms of occupation are available on request.

Method of Sale:
The property is being offered for sale by private treaty as a whole or in the three lots as described.
The vendors reserve the right to conclude the sale by an alternative method at their discretion or to further lot the property if it is appropriate.

Contract Farming and Ingoing Valuation:
The arable land is presently farmed on a contract basis with a local contractor, with the agreement running until the harvest of 2025.The purchaser will be required to take the position of the vendors on the farmer and to pay for any cultivations or crops as an addition to the purchase price at the time of completion of the purchase. A copy of the contract farming agreement will be available on request.


Services:
Mains electricity is connected to the property. Water is from a private borehole well and drainage is to a septic tank.

Authorities:
Local Authority - North Warwickshire District Council
County - Warwickshire County Council


Arbitration:
Should any dispute arise between the vendor and the purchaser upon any point whatsoever (not involving a question of law) arising out of the Remarks and Stipulations, Particulars of Plan or as to the interpretation thereof, the matter in dispute shall not annul the sale, but shall be referred to the arbitration of the agents, whose decision shall be final and binding on all parties to the dispute and in every such arbitration the agents shall decide how the cost of such reference shall be borne.


Wayleaves, Easements and Right of Way:
The property is crossed by a public footpath, and it is understood that there is a gas main across the property. Otherwise, the property is sold with the benefit of all wayleaves, easements and rights of way, whether mentioned or not.




Fixtures and Fittings: -
All items in the written text of these particulars are included in the sale. All other items are expressively excluded regardless of the inclusion in any photograph. Purchasers must satisfy themselves that any equipment included in the sale is in satisfactory order. The fixtures and fittings in the Tea Room are available via separate negotiations if they are required.

Money Laundering Regulations:
Prior to a sale being finalised, prospective purchasers will be required to produce identification documents. Your co-operation with his will be appreciated, as this is in order to comply with Money Laundering Regulations and will assist with the smooth progression of the sale.


Plans and Particulars:
These are believed to be correct, but their accuracy is not guaranteed, and no claim can be admitted for any errors or discrepancies.



Further enquiries and viewings:
For further information and an appointment to view, please contact Richard Newey on 0116 2814931.

Important Notices:
1. Particulars: These particulars are not an offer or contract, nor part of one. You should not rely on statements by Brown & Co in the particulars or by word of mouth or in writing ("information") as being factually accurate about the property, its condition or its value. Neither Brown & Co nor any joint agent has any authority to make any representations about the property and accordingly any information given is entirely without responsibility on the part of the agents, seller(s) or lessors(s).

2. Photos etc: The photographs show only certain parts of the property as they appeared at the time they were taken. Areas, measurements and distances given are approximate only.

3. Regulations etc: Any reference to alterations to, or use of, any part of the property does not mean that any necessary planning, building regulations or other consent has been obtained. A buyer or lessee must find out by inspection or in other ways that these matters have been properly dealt with and that all information is correct.

4. VAT: The VAT position relating to the property may change without notice.




Photographs dated: April 2024
Particulars dated: August 2024






Other


Farm Buildings (verged red):


The Boffey: A small stone built boffey located within the moated grounds of the Hall.

Building One: A range of stone and brick buildings consisting of six stables with a tiled roof

Building Two: A range of loose boxes and stables and Tack Room with brick floor

Building Three: Brick and stone with tiled floor, garage and Tack Room which contained a cast iron fireplace.

Building Four: Two Stables, storage and Carport
Building Five: ''The Threshing Barn'' a substantial brick and tiled building, presently used as a Workshop and for storage.

Building Six: A six-bay grain store with concrete panel and brick sides and box profile sheeting with access via a two-roller shutter door- 90ft x 80ft

Building Seven: Eight bays ''Atcost'' buildings with eight bay lean-tos with part concrete block and York boarding sides: 120ft x 75ft.

Building Eight: Former open silage clamp

Building Nine: Eight bay portal framed livestock building with concrete block and York boarding side - 120ft x 35ft.



Commercial Buildings - (verged blue)


Building A: Portal framed and concrete blocks. Approx 80ft x 50ft

Building B: Five Bay portal framed covered yard with concrete floor - Approx 80ft x 25ft.

Building C: Portal framed building with brick sides with sheeted roof. Approx 80ft 30ft
Building D: Six Bay portal framed yard-90ft x 30ft

Building/Area E: Area of open container storage


.

Tea Room

A brick and timber constructed building with a sheeted roof which comprises of:

Shop/Retail Area: - 4.45m x 4.36m

Kitchen: - 4.37m x 2.82m

Dining Area One: - 9.85m x 5.5m

Dining Area Two: - 9.0m x 4.8m with log burner


To the side of the Tea Room is an extensive timber decking area with views over the adjoining lake.


The Land:

Is classified as both Grade 2 and 3 on the MAFF produced land classification plans.
On the Soilscape Scale, the soil is predominantly classified as ''slightly acid loamy and clayey soil with inputted drainage and some loamy and clayey flood plain soils with a naturally high ground water.

The land has been farmed for a number of years on a predominantly arable rotation, with areas of permanent pasture used for grazing.




Remarks and Stipulations:


Directions:
From Coleshill - proceed out of Coleshill along the Blythe Road, via the village of Shustoke to the village of Furnace End. At the crossroads, turn left (B4098) towards Nether Whitacre. In Nether Whitacre, take the right turn into Dog Lane and Whitacre Hall is located on the left-hand side after approximately 1.5 miles.

What3words Location: impaled.races.darts


Tenure and Possession:
Lot 1: -Is being sold freehold and predominantly with vacant possession of the commercial units. The details of the occupier and terms of occupation are available on request.


Method of Sale:
The property is being offered for sale by private treaty as a whole or in the three lots as described.
The vendors reserve the right to conclude the sale by an alternative method at their discretion or to further lot the property if it is appropriate.

Contract Farming and Ingoing Valuation:
The arable land is presently farmed on a contract basis with a local contractor, with the agreement running until the harvest of 2025.The purchaser will be required to take the position of the vendors on the farmer and to pay for any cultivations or crops as an addition to the purchase price at the time of completion of the purchase. A copy of the contract farming agreement will be available on request.


Services:
Mains electricity is connected to the property. Water is from a private borehole well and drainage is to a septic tank.

Authorities:
Local Authority - North Warwickshire District Council
County - Warwickshire County Council


Arbitration:
Should any dispute arise between the vendor and the purchaser upon any point whatsoever (not involving a question of law) arising out of the Remarks and Stipulations, Particulars of Plan or as to the interpretation thereof, the matter in dispute shall not annul the sale, but shall be referred to the arbitration of the agents, whose decision shall be final and binding on all parties to the dispute and in every such arbitration the agents shall decide how the cost of such reference shall be borne.


Wayleaves, Easements and Right of Way:
The property is crossed by a public footpath, and it is understood that there is a gas main across the property. Otherwise, the property is sold with the benefit of all wayleaves, easements and rights of way, whether mentioned or not.




Fixtures and Fittings: -
All items in the written text of these particulars are included in the sale. All other items are expressively excluded regardless of the inclusion in any photograph. Purchasers must satisfy themselves that any equipment included in the sale is in satisfactory order. The fixtures and fittings in the Tea Room are available via separate negotiations if they are required.

Money Laundering Regulations:
Prior to a sale being finalised, prospective purchasers will be required to produce identification documents. Your co-operation with his will be appreciated, as this is in order to comply with Money Laundering Regulations and will assist with the smooth progression of the sale.


Plans and Particulars:
These are believed to be correct, but their accuracy is not guaranteed, and no claim can be admitted for any errors or discrepancies.



Further enquiries and viewings:
For further information and an appointment to view, please contact Richard Newey on 0116 2814931.

Important Notices:
1. Particulars: These particulars are not an offer or contract, nor part of one. You should not rely on statements by Brown & Co in the particulars or by word of mouth or in writing ("information") as being factually accurate about the property, its condition or its value. Neither Brown & Co nor any joint agent has any authority to make any representations about the property and accordingly any information given is entirely without responsibility on the part of the agents, seller(s) or lessors(s).

2. Photos etc: The photographs show only certain parts of the property as they appeared at the time they were taken. Areas, measurements and distances given are approximate only.

3. Regulations etc: Any reference to alterations to, or use of, any part of the property does not mean that any necessary planning, building regulations or other consent has been obtained. A buyer or lessee must find out by inspection or in other ways that these matters have been properly dealt with and that all information is correct.

4. VAT: The VAT position relating to the property may change without notice.

5. Guide Price:


Photographs dated: April 2024
Particulars dated: August 2024






Save
To arrange a viewing contact

5 Geoff Monk Way, Birstall, Leicester, Leicestershire, LE4 3BU

0116 281 4937

Find out about the latest properties?

Register with us and we will email you properties matching your search requirements.

Register now

Please allow marketing in your cookie preferences to view the Feefo widget
Saved properties (0)