Skip to content
Search
Book valuation
1 / 14
Lower Lynbrook Farm, Newchurch, Hoar Cross, Burton-On-Trent, Staffordshire, DE13 8RL
69.61 ha (172 ac)
1 / 1
Offers In Excess Of
£5,000,000
  • Characterful Farmhouse and Buildings set in approximately 172 acres.
  • Extensive and versatile rural property, set in The National Forest.
  • Easy access to Burton Upon Trent and Lichfield
  • What 3 words - Picturing.such.overused

Extensive and versatile rural property, nestled in idyllic countryside, totalling approximately 172 acres.

Arrange viewing

About this property

Detailed Description

The sale of Lower Lynbrook Farm offers a rare opportunity to purchase an extensive and versatile rural property, nestled in idyllic countryside, totalling approximately 172 acres. The farm is being offered as a whole or in two lots.
Lower Lynbrook Farm gives the opportunity to acquire a characterful farmhouse with a range of traditional and modern farm buildings and stabling, which offer tremendous opportunities for alternative uses, subject to the appropriate planning consents.
Lower Lynbrook Farm adjoins St George's Park; The Football Association Centre of Excellence and it is believed that there is a range of alternative uses subject to consent due to its strategic location. The property is also located within the National Forest.

Location

Lower Lynbrook Farm is located in the highly desirable vicinity of Hoar Cross/Newchurch with easy access to Lichfield (approximately 9 miles), Burton -on-Trent (approximately 7 miles) and the A38 and A50, giving easy access to the transport network. The area is served with good local and independent schools.

Accommodation

LOT 1:

The Farmhouse, Farm Buildings and approximately 75.37 acres of land (verged red on accompanying plan)
The Farmhouse
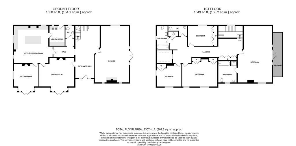
Lower Lynbrook farmhouse benefits from scenic views across open countryside, adjoined by a range of traditional brick and tiled buildings which have a wealth of alternative uses subject to the appropriate consents. It is an extensive characterful farmhouse with the accommodation arranged over two floors as follows:

Accommodation
Ground Floor:
Lounge/Dining Room: - 8.61m x 5.24m (max) 4.36m (min) with feature brick fireplace with brick and stone heart, laminate timber floor, double doors to garden with views across the land.

Hallway: - 7.96m x 2.88m with staircase to first floor

Dining Room: - 5.37m x 4.31m with cast iron fireplace with wood mantle and tiled hearth, double doors leading to the front of the farmhouse.

Downstairs W.C: 1.89m x 1.36m with W.C Vanity unit

Kitchen: 5.71m x 5.39m with fitted floor and wall units together with central island, EVERHOT range cooker, together with fitted dishwasher and fridge/freezer and stone tiled floor

Snug: 3.52m x 3.52m with Victorian style cast iron fireplace with tiled hearth, beamed ceiling and double doors leading to front of property.

Utility Room: 3.09m x 2.40m with fitted floor and wall units, plumbing for washing machine, stone tiled floor, GLOW WORM central heating boiler.

First Floor:
Landing with fitted furniture

Master Bedroom: - 8.62m (max) x 5.25m (max) 4.39 (min) with double doors leading to balcony with views over the open countryside, adjoining Ensuite - 3.34m x 2.95m with low-flush W.C, panelled bath, shower cubicle and heated towel rail.

Bedroom Two: 4.52m x 3.07m with fitted bedroom furniture

Bedroom Three: - 3.85m x 3.54m with fitted bedroom furniture

Bedroom Four: 5.37m x 4.11m with fitted bedroom furniture

Family Bathroom: with low-flush W.C and pedestal wash basin

Outside:
Lower Lynbrook Farm is approached along the farm drive with access to the farmhouse via a gravel track off the drive which leads to a lorry parking area. The garden is positioned to two sides of the farmhouse which is a mainly lawned area with mature herbaceous borders and trees. There are also patio areas which provide adequate space for outdoor entertaining.

Farm Buildings

Building One:
A range of traditional and brick tiled buildings which form a courtyard with the farmhouse, comprising of:
A double garage, W.C, PTO Back-up generator, workshops and dog kennels. The first floor has been boarded out to provide additional space

Building Two:
A range of timber stables and garaging comprising of: Three open garages, two stables and a tack room.

Building Three:
A seven bay portal framed livestock building wit concrete block and York boarding sides. Three bays have sheeted gates, and three bays have cattle feed barriers, and one bay has cattle crush gates.

Building Four:
Former Dairy Parlour and collecting yard with eight bay lean-to with concrete floor (7.12m x 36.40m) with adjoining former cubicle and feed yard with concrete floor and walls of concrete block and York boarding construction (40.95m x 15m) and attached former cubicle yard (40.95m x 15m)

Building Five:
Former Dairy and Milking Parlour and Cubicle Yard comprising of:
Parlour and Collecting Yard - (9.35m x 6.61m)
Former Dairy - (4.92m x 4.38m)
Former Cubicle Yard - 39.42m x 18.5m)

Building Six:
Four bay portal framed livestock building

Building Seven:
Machinery Store - Five bays with concrete floor and concrete panelled and sheeted sides (30m x 15.0m)

Building Eight:
Four concrete panelled silage clamps

Building Nine:
Above ground slurry store

The Land
The farmstead is located in a central location and is surrounded by 79 acres of land being mainly pastureland with an area of woodland.

LOT 2:
95.11 acres - (verged blue on attached plan).
A superb parcel of pasture and arable land together with a well-stocked fishing pond and benefits from road frontage to both the north and south.

Business Rates

The property may benefit from Small Business Rates Relief which may reduce the rates payable. Please contact the agents for more information.

Services

Mains water and electricity are connected to the property. Drainage is to a private system. Central heating is from a bottled gas source.

Viewing

For further information and an appointment to view, please contact Richard Newey on 0116 2814931.

VAT

The VAT position relating to the property may change without notice.

Other

Tenure and Possession:
The property is sold freehold and with vacant possession upon completion of the purchase.

Method of Sale:
The property is being offered for sale by private treaty as a whole or in two lots as described.

Sporting Rights:
These are all understood to be in hand.

Mineral Rights:
These are understood to be owned by a third party.

Arbitration:
Should any dispute arise between the vendor and the purchaser upon any point whatsoever (not involving a question of law) arising out of the Remarks and Stipulations, Particulars of Plan or as to the interpretation thereof, the matter in dispute shall not annul the sale, but shall be referred to the arbitration of the agents, whose decision shall be final and binding on all parties to the dispute and in every such arbitration the agents shall decide how the cost of such reference shall be borne.

Wayleaves, Easements and Right of Way:
The property is sold subject to and with the benefit of any wayleaves, easements or rights of way, whether mentioned or not.

Fencing Liabilities:
If the property is sold to two separate purchasers, it will be the responsibility of the purchaser of Lot 2 to erect a fence of post and four rails and 'quick thorn' to be planted between the points marked as A - B on the accompanying plan.

Save
To arrange a viewing contact

5 Geoff Monk Way, Birstall, Leicester, Leicestershire, LE4 3BU

0116 281 4937

Find out about the latest properties?

Register with us and we will email you properties matching your search requirements.

Register now

Saved properties (0)