Skip to content
Search
Book valuation
1 / 2
Sunnyside Farm, 227 Ashby Road, Hinckley, Leicestershire, LE10 1SJ
POA
Residential Development
  • Land East of Stoke Road and North of Normandy Way (A47) Hinckley
  • Five interconnected field parcels extending to 61.20 acres.
  • Closing date for tenders is 12 noon 5th April 2024
Arrange viewing

About this property

Detailed Description

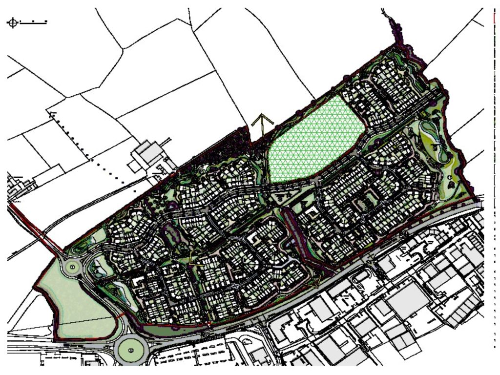
An opportunity to purchase a residential development site, which is situated within the Borough of Hinckley and Bosworth, with planning consent "for the erection of 475 dwellings including public open space, land reserved for a Primary School, together with further expansion land (Use Class F1(a)), drainage, landscaping and associated infrastructure". ("The Site"). The Site is shown for identification purposes edged red on the accompanying plan.

Location

The Site is sustainably located to the north of the large Leicestershire town of Hinckley.

Services

All potential Purchasers should investigate these matters to satisfy themselves.

Viewing

Via prior appointment with the Selling Agent.

VAT

Please note that the Vendors will be opting to tax the property for VAT prior to the sale and VAT will be chargeable on the purchase price of the land.

Other

Potential Purchasers who wish to make an offer are requested to complete the pro-forma located in the data room which includes the following:

1. Solicitors' details

2. A timescale to completion

3. Board approval (if necessary)

4. Allowances for abnormals and S.106 costs

5. Payment terms

6. Confirmation that in addition to the purchase price, they will agree to the Vendor's Agent's fees of 1.5% + VAT.

7. Each party to pay their own legal fees however upon acceptance of an offer the potential purchasers will confirm that will enter into a legal undertaking or non-refundable deposit to cover any legal fees in the event of abortive transaction.

8. Closing Date for tenders is the 12-noon 5th April 2024.

Save
To arrange a viewing contact

5 Geoff Monk Way, Birstall, Leicester, Leicestershire, LE4 3BU

0116 281 4937

Find out about the latest properties?

Register with us and we will email you properties matching your search requirements.

Register now

Saved properties (0)